九热视频,机械师3国语电影在线观看完整版,干色视频,99九九99九九九视频精品,野蛮女人完整版在线观看,亚洲激情99,亚洲成人福利电影

Hubei Dayu Hanguang Vacuum Electric Co.,Ltd.
CN EN

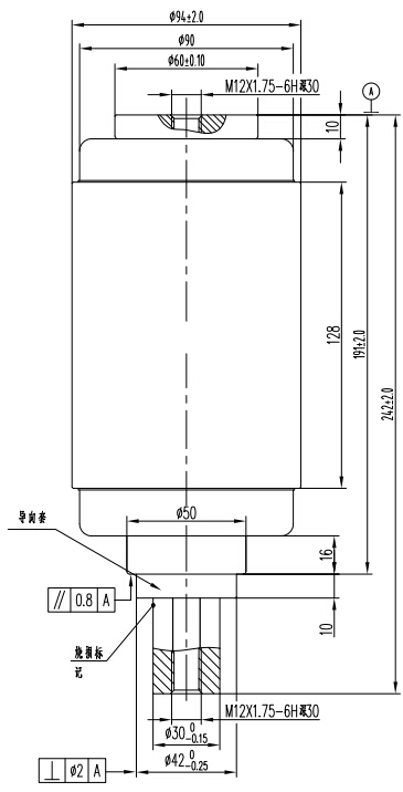
VI for 24KV Embedded Poles TD435Z

Model:VITD24/1250-25

Category:VI for 24KV embedded poles


Product details

1435827460702528.jpg
Main Technical Parameter
Rated voltage24kV
Rated current1250A
Rated frequency50Hz
Rated short-time Power frequency withstand voltage79kV
Rated lightning impulse withstand voltage145kV
Rated short-circuit breaking current25kA
Rated short-circuit making current(peak)63kA
Breaking operations of rated short circuit breaking current30 times
Rated breaking current of single capacitor bank400A
Rated short-time withstand current25kA
Rated peak withstand current63kA
Rated duration of short-circuit4 s
Mechanical endurance10000 times
Closing force due to bellow and atmosphere120±50N
Force required to hold contacts open at full storke190±60N
Circuit resistance at lowest rated contact force≤20μ?
Storage life20 years
Contacts limit erosion3mm
Weight of movable parts≤1.2kg
MECHANICAL DATA REQUIRED FOR THE MATCHED VACUUM SWITCHGEAR
Clearance between open contacts13±1 mm
Contact connection stroke3.5±0.5mm
Average opening speed(average of 75% contact gap)1.5±0.2m/s
Average closing speed(average of last 30% contact gap)0.8±0.2m/s
Rated added extemal contact final force2500±200N
Contact bouncing duration at closing operation≤2 ms
Closing and opening non-simultaneity of three-phase contacts≤1 ms

Relevant information